
to projekt zlokalizowany na Śląsku, na terenach miejskich wypełnionych głównie zabudową jednorodzinną. Położony jest na lekko opadającej, ostatniej działce dostępnej z drogi dojazdowej, zakończonej skarpą pokrytą zielenią i widokiem na park ukierunkowanym w stronę północną. Inwestorzy to młoda rodzina 2+2 oczekująca niewielkiego, niskobudżetowego parterowego domu spełniającego ich potrzeby mieszkalne i wykorzystania walorów krajobrazowych działki. Charakteryzującego się czytelnym podziałem funkcjonalnym i brakiem strat powierzchniowych wynikłych często z koniecznej komunikacji.
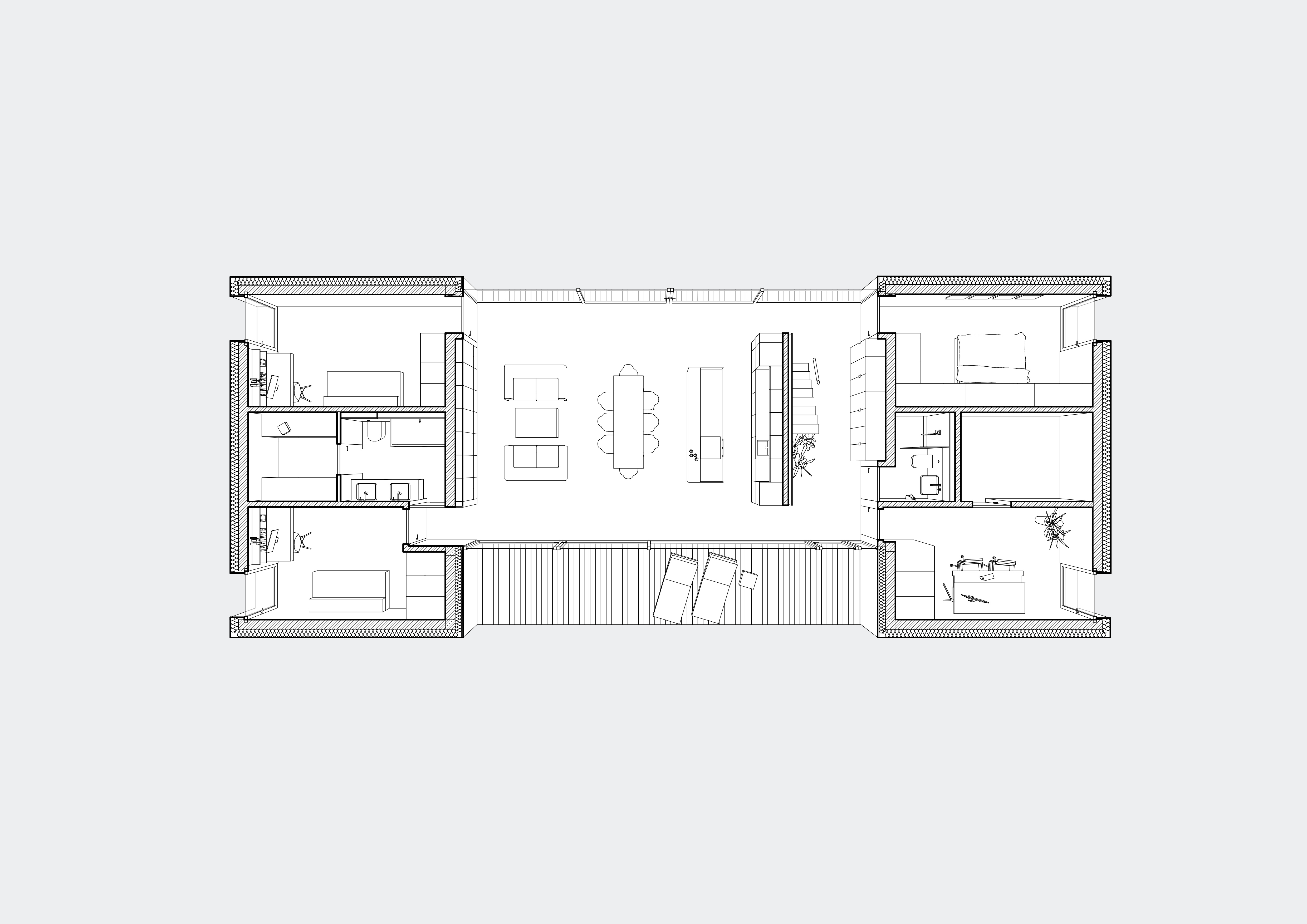
Ideą projektu jest połączenie uwarunkowań wynikłych z kontekstu urbanistycznego (odwrócony układ stron świata) oraz oczekiwań inwestorów (wykorzystanie walorów widokowych działki). Wszystko to razem tworzy koncepcję, która zakłada budowę prostego w swojej formie domu na planie prostokąta z dużym otwarciem części dziennej na przestrzał, która w sposób bezpośredni otwiera się na zastany północny krajobraz, ale także na dobrze doświetloną strefę południową. Bezpośrednio po wejściu do budynku ukazuje nam się przestronny salon, po którego obu stronach znajdują się duże panoramiczne przeszklenia, z zadaszonym tarasem od strony południowej, ale też z widokom na zmieniający się o każdej porze dnia i roku się krajobraz od strony północnej. Dzięki takiemu rozwiązaniu bryła domu w pewnym sensie nie dzieli działki, ale staje się łącznikiem pomiędzy częścią północną i południową.
Wyraźny podział poszczególnych stref funkcjonalnych daje duży komfort mieszkańcom. Od strony zachodniej mamy część nocną dzieci, od strony wschodniej część nocną i pracy rodziców, które połączone są dużym, przestronnym salonem z jadalnią oraz holem. Taki układ z jednej strony pozwala całkowicie zrezygnować z korytarzy, a z drugiej zapewnia dobrą dla relacji rodzinnych przestrzeń dzienną, stanowiącą scentralizowane serce domu.



Dom jest oszczędny w swojej formie, składa się z bryły na planie prostokąta zwieńczonej klasycznym dachem dwuspadowym. Bryły stanowiącej tło dla przestrzeni w niej „wydrążonej” łączącej część północną i południową działki, otwartej na dwie strony świata części dziennej. Aby idea łącznika była czytelniejsza dla odbiorców (bardziej naturalna) postanowiono zaakcentować ten przepływ poprzez wyoblenie stropu nad częścią dzienną oraz narożników budynku.
Przyjęto, że główna bryła budynku będzie miała neutralną ciemno szarą kolorystykę pokrytą tykiem, a dwuspadowy dach zostanie pokryty ciemno szarą blachą trapezową. Takie rozwiązanie spowoduje, że obiekt odbierany będzie jako tło dla „wydrążonej” w nim części dziennej.
Całość to projekt nowoczesny, stawiający mocno na relację domownik – krajobraz, zapewniający przy tym piękną przestrzeń części dziennej, ale także skromny powierzchniowo i bardzo prosty w budowie. To dom, dobrze wpisujący się w bezpośrednie otoczenie, spójny koncepcyjnie, kolorystycznie i materiałowo. To obiekt dający duży komfort użytkownikom, po prostu dom na przestrzał!
projekt:
lokalizacja:
inwestor:
powierzchnia:
architekci:
2022
Zabrze
prywatny
149 m2
Adam Radzimski